Il trapano multi-spindrico, comunemente noto come trapano a più fori, perforazione a più-spindle, macchina utensile multi-spinestra o testa multi-spinestra, è un nuovo tipo di apparecchiatura di elaborazione del foro. In effetti, è la testa di mandrino installata sulla perforazione e le macchine toccanti e può elaborare contemporaneamente parti perforate o sfruttate su due o più assi, quindi è chiamata macchina multi-asse. Il trapano multi-buco può elaborare contemporaneamente più fori su un singolo piano e può essere installato su varie macchine per perforazioni come esercitazioni da banco e teste di alimentazione per l'uso. È un accessorio per macchine utensili efficiente che migliora l'efficienza e riduce i costi e la qualità dei prodotti trasformati è stabile.
Altre dimensioni possono essere personalizzate.
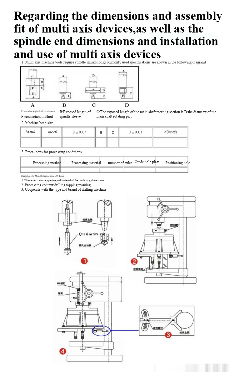
Una macchina per trivellazione multiasse comune e una macchina per perforazione comune (compresi esercitazioni da banco, esercitazioni verticali, trapani radiali, perforazioni e fresature, connessioni motorie dirette, teste di alimentazione, ecc. Possono essere installate tutte) possono elaborare diversi o addirittura venti fori o filetta
Titolo
(Macchina a due assi a due assi di perforazione, toccamento e threading, accessori completamente automatici per la perforazione, macchina per perforazione a due assi, perforazione a più teste)







